Edilizia Civile ed Industriale

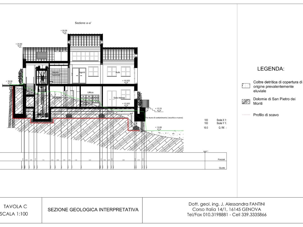
 Relazione geologica e direzione lavori geologica a supporto del progetto per la realizzazione della nuova Scuola per l’Infanzia di Via Vittorio Veneto 21, Borgio Verezzi – Savona.
Committente: Comune di Borgio Verezzi (Anni 2021 – 2025)

Relazione geologica e geotecnica a supporto del progetto esecutivo per la realizzazione di un nuovo centro di radioterapia in Via Bainsizza – Genova.
Committente: Amethyst Radioterapia Italia S.r.l. (Anno 2024)

Relazione geologica a supporto del progetto di fattibilità tecnico economica dell’intervento edilizio da realizzare presso il Fabbricato civico 29 di Via I Maggio – Comune di Bordighera.
Committente: Rebus Ingegneria S.r.l. (Anno 2024)

Relazione geologica e geotecnica a supporto del progetto di trasformazione urbanistico-edilizia nell’ambito 4.3 Località Fornace – Comune di Belforte.
Committente: COGEI S.p.A. (Anno 2024)

Relazione geologica e direzione lavori geologica a supporto dell’intervento di demolizione e ricostruzione dell’edificio sito in Via Belvedere 18, Noli – Savona.
Committente: Condominio Via Belvedere 18 (Anni 2020 – 2024)

Relazione geologica a supporto del progetto di consolidamento strutturale del palazzo civico comunale di Noli – Savona.
Committente: Comune di Noli (Anno 2020)

Relazione geologica a supporto del progetto di messa in sicurezza con miglioramento sismico e ampliamento della scuola primaria “A. Ferrarin” – Bellaria-Igea Marina (RN).
Committente: Comune di Bellaria-Igea Marina (Anno 2023)

Relazione geologica a supporto del progetto di riqualificazione di un’area a verde privata con inserimento di attrezzature sportive coperte, spogliatoi e servizi funzionali ai campi da padel in Comune di Genova.
Committente: AC99 S.r.l. (Anno 2023)

Relazione geologica ed indagine geologica presso capannone industriale sito in Via Pier Domenico da Bissone 5 a Genova Sestri Ponente.
Committente: Imafind S.r.l. (Anni 2022-2023)

Relazione geologica a supporto del progetto di risanamento conservativo di Villa Argentina, Via Gramsci 119 – Comune di Santa Margherita Ligure.
Committente: Kamelya Real Estate S.r.l. (Anno 2022)

Relazione geologica a supporto del progetto di miglioramento sismico del fabbricato sito in Via Nicoloso da Recco, 10 a Pegli – Comune di Genova.
Committente: Blubud S.r.l. (Anno 2022)

Relazione geologica a supporto del progetto delle opere di adeguamento del complesso sportivo Morgavi sito in Salita Millelire 4 – Genova.
Committente: Comune di Genova (Anno 2020)

Indagini geognostiche a supporto dell’intervento di messa in sicurezza, restauro e ristrutturazione edilizia dell’edificio denominato “La Marinella” in Passeggiata Anita Garibaldi 18 (Genova).
Committente: La Marinella 1934 S.r.l. (Anno 2020)

Indagini geognostiche a supporto dell’intervento di riqualificazione di area ex industriale con previsione di sistemazione ad attività produttive e commerciali in Via Spataro (Genova).
Committente: Nuova Spataro S.r.l. (Anno 2018)

Indagini geognostiche a supporto delle opere di valorizzazione del piano rialzato del Mercato Orientale di Genova.
Committente: MOG S.r.l. (Anno 2017)

Relazione geologica esecutiva a supporto del permesso di costruire per sostituzione edilizia in Piazza Leopardi 3 (Genova).
Committente: Provincia Ligure Piemontese dei Frati Minori Conventuali (Anno 2016)

Relazione geologica esecutiva a supporto dell’intervento di nuova realizzazione di palestra, relativa sistemazione urbana e ristrutturazione complesso scuola elementare di Noli (Savona).
Committente: Comune di Noli (Anno 2015)

Indagini geognostiche a supporto della progettazione di sopraelevazione di parte di fabbricato industriale per realizzazione mensa aziendale in Viale Lidice 38, 40, 42 nel Comune di Grugliasco (To).
Committente: Commerciale Tubi Acciaio S.p.A. (Anno 2010)

Indagini geognostiche a supporto del progetto dei nuovi laboratori centralizzati dell’Ospedale San Martino di Genova.
Committente: Azienda Ospedaliera Universitaria San Martino di Genova (Anno 2009)

Indagini geognostiche a supporto della progettazione di un capannone industriale in Via Gualco, in sponda sinistra del Torrente Bisagno (Genova).
Committente: Cogel concessionaria gelati S.r.l. (Anno 2005)

Indagini geognostiche a supporto della progettazione di edificio nell’ambito del programma sperimentale di edilizia residenziale “20000 abitazioni in affitto” in località Begato – Comune di Genova.
Committente: Consorzio Arti Edili Società Cooperativa consortile a r.l. (Anno 2005)